Meeker School District RE-1 is a small, rural school district located in the northwest corner of Colorado. The entire student body is housed on one campus that consists of a separate elementary, middle, and high school. Currently, there are 744 students in pre-school through 12th grade.
The district’s transportation facility is also located on this campus. The administrative office is located in separate building a few blocks away from the other three buildings.
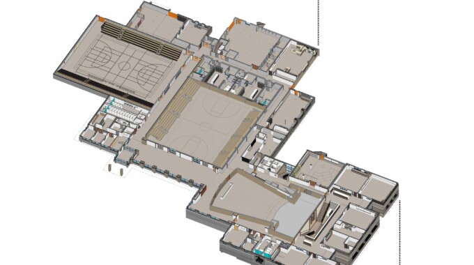
Like many rural school districts, the schools are often a focal point for community activities, specifically the high school building. The school district’s facilities, specifically the high school, are continuing to age.
The district contracted NV5 after a competitive bidding process to provide oversight for the entire project, including design, building, budget, and scheduling. NV5 prepared lead procurement for all scopes of work ranging from the design team to the movers.
NV5 successfully guided the Colorado Department of Education (CDE) BEST grant application, as well as the Department of Homeland Security security grant. Through the design process, NV5 managed the user-group and design advisory group meetings with the design team. With assistance from the Construction Manager as General Contractor (CM/GC), NV5 led the value engineering process. NV5 will continue the oversee development while managing cost, schedule, and budget through closeout and the warranty period.
Renderings: TreanorHL



